永田町エリアの内装付きメゾネットオフィス
問い合わせ番号:21407成約済み
物件情報
- 賃料
- 相談
- 敷金・保証金
- 6カ月
- 礼金
- なし
- 償却等
- 更新料:無し
償却:無し
- 所在地
- 千代田区平河町2
- 交通
- 南北線・有楽町線「永田町」2分
半蔵門線「半蔵門」7分
銀座線・丸の内線「赤坂見附」7分
- 構造規模
-
鉄筋コンクリート造
地下1階 地上8階
- 契約面積
- 210.12m²(約63.56坪)
- 所在階
- 1階+B1階
入居可能時期
2023年4月予定
備考
永田町2分地下で赤坂見附にも
繋がっていてメトロ5線が使える
アクセスのいい立地。
周辺には皇居やニューオータニなどの
自然に囲まれた心地いい環境。
衆参両議院会館がある政治の中心地
という一面もあるエリア。
このエリアの人気の内装付きオフィス、
コストを抑え移転されたい方にお勧め。
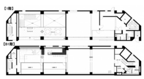
1階:37.69㎡(11.40坪)
+ B1階:172.43㎡(52.16坪)
2フロアのメゾネット仕様、永田町の内装付きオフィスです。
会員限定公開情報は
無料会員登録後に閲覧いただけます
03-6260-9380
受付時間:平日9:00~18:00
間取り

同じエリアのおすすめ物件

岩本町駅徒歩3分のセットアップオフィス
千代田区神田東松下町
128.10m²〔38.75坪〕
128.10m²〔38.75坪〕
620,000円

九段エリアの内装付きオフィス
千代田区九段南
142.32m²〔43.05坪〕
142.32m²〔43.05坪〕
1,050,000円

神田エリアの内装付きオフィス
千代田区神田東紺屋町
86.09m²〔26.04坪〕
86.09m²〔26.04坪〕
520,800円

神保町駅前のセットアップオフィス 敷金0相談
千代田区神田神保町
53.16m²〔16.08坪〕
53.16m²〔16.08坪〕
337,680円

麹町エリアの什器付きセットアップオフィス
千代田区麴町
92.86m²〔28.09坪〕
92.86m²〔28.09坪〕
758,430円

九段下エリアの大型居抜きオフィス
千代田区九段北
1031m²〔311.88坪〕
1031m²〔311.88坪〕
相談
物件情報
- 賃料
- 相談
- 敷金・保証金
- 6カ月
- 礼金
- なし
- 償却等
- 更新料:無し
償却:無し
- 所在地
- 千代田区平河町2
- 交通
- 南北線・有楽町線「永田町」2分
半蔵門線「半蔵門」7分
銀座線・丸の内線「赤坂見附」7分
- 構造規模
-
鉄筋コンクリート造
地下1階 地上8階
- 契約面積
- 210.12m²(約63.56坪)
- 所在階
- 1階+B1階
入居可能時期
2023年4月予定
受付時間:平日9:00~18:00

