半蔵門駅のセットアップオフィス(什器付き)
問い合わせ番号:34656
物件情報
- 賃料
- 相談
- 敷金・保証金
-
相談
※保証会社に加入することにより敷金0相談
審査の内容によっては敷金が積み増しになる可能性があります。
- 所在地
- 千代田区一番町
- 交通
- 半蔵門線「半蔵門」2分
有楽町線「麹町」7分
新宿線「市ヶ谷」12分
JR「市ヶ谷」12分
南北線「市ヶ谷」12分
- 構造規模
-
鉄筋コンクリート造
地上6階
- 契約面積
- 269.02m²(約81.38坪)
- 所在階
- 2階
入居可能時期
即日入居可
備考
半蔵門線半蔵門駅2分に加え麹町駅、便利なターミナル駅市ヶ谷も徒歩圏の好立地。
このエリアは東京都の中心部に位置するエリアで、高級住宅地やオフィスビルが立ち並び、歴史とモダンさが融合した魅力的な地域です。
東京都内でも有数の高級住宅地として知られています。閑静な住宅街が広がり、多くの著名人やビジネスリーダーが住んでいます。
マンションや一戸建てが多く、セキュリティも充実しています。
このエリアには多くのオフィスビルがあり、ビジネスパーソンが多く行き交います。
特に金融機関や法律事務所、コンサルティング企業などが多く、ビジネスの中心地としての役割を果たしています。
-千鳥ヶ淵緑道: 千鳥ヶ淵緑道は、桜の名所として知られており、春になると多くの人々が訪れます。散歩やジョギングに適した場所です。
1番町からは皇居も近く、日本の歴史と文化を感じることができます。皇居周辺のランニングコースも人気です。
靖国神社: 靖国神社も比較的近くにあり、歴史的・文化的な観光スポットとして訪れる価値があります。
このエリアの人気セットアップオフィス、執務室什器無、目安39席6名用・8名用会議室、テレカンブース2室ラウンジスペース。
半蔵門駅の居抜きオフィスです。
会員限定公開情報は
無料会員登録後に閲覧いただけます
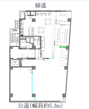
間取り

同じエリアのおすすめ物件

岩本町駅徒歩3分のセットアップオフィス
128.10m²〔38.75坪〕
620,000円

九段エリアの内装付きオフィス
142.32m²〔43.05坪〕
1,050,000円

神田エリアの内装付きオフィス
86.09m²〔26.04坪〕
520,800円

神保町駅前のセットアップオフィス 敷金0相談
53.16m²〔16.08坪〕
337,680円

麹町エリアの什器付きセットアップオフィス
92.86m²〔28.09坪〕
758,430円

九段下エリアの大型居抜きオフィス
1031m²〔311.88坪〕
相談
物件情報
- 賃料
- 相談
- 敷金・保証金
-
相談
※保証会社に加入することにより敷金0相談
審査の内容によっては敷金が積み増しになる可能性があります。
- 所在地
- 千代田区一番町
- 交通
- 半蔵門線「半蔵門」2分
有楽町線「麹町」7分
新宿線「市ヶ谷」12分
JR「市ヶ谷」12分
南北線「市ヶ谷」12分
- 構造規模
-
鉄筋コンクリート造
地上6階
- 契約面積
- 269.02m²(約81.38坪)
- 所在階
- 2階
入居可能時期
即日入居可
受付時間:平日9:00~18:00










