番町エリアの居抜きオフィス
問い合わせ番号:9676成約済み
物件情報
- 賃料
1,400,000円
- 共益費
- 200,000円
- 敷金・保証金
- 8カ月
- 償却等
- 再契約:1カ月
償却:1カ月
- 所在地
- 千代田区四番町
- 交通
- 有楽町線「麹町」3分
JR・新宿線・南北線「市ヶ谷」5分
- 構造規模
-
鉄筋鉄骨コンクリート造
地下1階 地上7階
- 契約面積
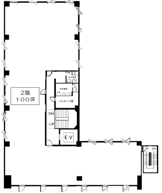
- 330m²(約99.83坪)
- 所在階
- 2階
入居可能時期
相談
備考
市ヶ谷駅から日本テレビ通りを
麹町方面へ歩き、番町学園通りを
左折するとすぐこの物件が現れる。
高級住宅地の一角の閑静な立地、
上品なイメージの外観、
使いやすい柱のないL字の室内、
そして居抜きという特典付き。
市ヶ谷の居抜きオフィスです。
会員限定公開情報は
無料会員登録後に閲覧いただけます
03-6260-9380
受付時間:平日9:00~18:00
間取り

同じエリアのおすすめ物件

岩本町駅徒歩3分のセットアップオフィス
千代田区神田東松下町
128.10m²〔38.75坪〕
128.10m²〔38.75坪〕
620,000円

九段エリアの内装付きオフィス
千代田区九段南
142.32m²〔43.05坪〕
142.32m²〔43.05坪〕
1,050,000円

神田エリアの内装付きオフィス
千代田区神田東紺屋町
86.09m²〔26.04坪〕
86.09m²〔26.04坪〕
520,800円

神保町駅前のセットアップオフィス 敷金0相談
千代田区神田神保町
53.16m²〔16.08坪〕
53.16m²〔16.08坪〕
337,680円

麹町エリアの什器付きセットアップオフィス
千代田区麴町
92.86m²〔28.09坪〕
92.86m²〔28.09坪〕
758,430円

九段下エリアの大型居抜きオフィス
千代田区九段北
1031m²〔311.88坪〕
1031m²〔311.88坪〕
相談
物件情報
- 賃料
1,400,000円
- 共益費
- 200,000円
- 敷金・保証金
- 8カ月
- 償却等
- 再契約:1カ月
償却:1カ月
- 所在地
- 千代田区四番町
- 交通
- 有楽町線「麹町」3分
JR・新宿線・南北線「市ヶ谷」5分
- 構造規模
-
鉄筋鉄骨コンクリート造
地下1階 地上7階
- 契約面積
- 330m²(約99.83坪)
- 所在階
- 2階
入居可能時期
相談
受付時間:平日9:00~18:00
