表参道エリアのハイグレードオフィス
問い合わせ番号:10461成約済み
物件情報
- 賃料
- 相談
- 敷金・保証金
- 相談
- 所在地
- 港区南青山3
- 交通
- 銀座線・千代田線・半蔵門線「表参道」4分
- 構造規模
-
鉄骨造
地下1階 地上11階
- 契約面積
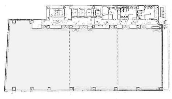
- 295.47m²(約89.38坪)
- 所在階
- 3階
入居可能時期
即日可能
備考
人気の表参道と外苑前の中間地点、
青山通りに面するハイグレードオフィス。
圧倒的な存在感のガラスファサードの外観。
エントランスや共用部分のデザインも
洗練されていてお洒落なオフィスとなっている。
この大型オフィスの分割区画。
青山の賃貸オフィスです。
会員限定公開情報は
無料会員登録後に閲覧いただけます
03-6260-9380
受付時間:平日9:00~18:00
間取り

同じエリアのおすすめ物件
物件情報
- 賃料
- 相談
- 敷金・保証金
- 相談
- 所在地
- 港区南青山3
- 交通
- 銀座線・千代田線・半蔵門線「表参道」4分
- 構造規模
-
鉄骨造
地下1階 地上11階
- 契約面積
- 295.47m²(約89.38坪)
- 所在階
- 3階
入居可能時期
即日可能
受付時間:平日9:00~18:00






