表参道駅直結の好立地大型オフィス
問い合わせ番号:13115成約済み
物件情報
- 賃料
- 相談
- 敷金・保証金
- 相談
- 所在地
- 港区北青山3
- 交通
- 銀座線・半蔵門線・千代田線「表参道」1分
副都心線「明治神宮前」7分
JR「原宿」11分
- 構造規模
-
鉄筋鉄骨コンクリート造
地下3階 地上13階
- 契約面積
- 949.39m²(約287.19坪)
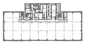
- 所在階
- 5階
入居可能時期
2022年3月上旬予定
備考
三線が交差する便利な表参道駅直結、
このエリア最大級の大型賃たオフィス。
表参道に面しており、ラグジュアリブランドの
旗艦店が入居。このエリアのランドマークタワー
となっている。
石張りの堂々たる外観は周囲を圧倒。
お勧め表参道の大型賃貸オフィスです。
会員限定公開情報は
無料会員登録後に閲覧いただけます
03-6260-9380
受付時間:平日9:00~18:00
間取り

同じエリアのおすすめ物件
物件情報
- 賃料
- 相談
- 敷金・保証金
- 相談
- 所在地
- 港区北青山3
- 交通
- 銀座線・半蔵門線・千代田線「表参道」1分
副都心線「明治神宮前」7分
JR「原宿」11分
- 構造規模
-
鉄筋鉄骨コンクリート造
地下3階 地上13階
- 契約面積
- 949.39m²(約287.19坪)
- 所在階
- 5階
入居可能時期
2022年3月上旬予定
受付時間:平日9:00~18:00






