芝公園エリアの内装付きオフィス
問い合わせ番号:32625成約済み
物件情報
- 賃料
1,311,370円
- 敷金・保証金
- 6か月
- 礼金
- 無し
- 償却等
- 更新料:1ヵ月
敷引:1ヵ月
- 所在地
- 港区芝公園
- 交通
- 三田線「御成門」3分
浅草鎖線・大江戸線「大門」6分
JR・東京モノレール「浜松町」11分
- 構造規模
-
鉄筋鉄骨コンクリート造
地上8階
- 契約面積
- 244.23m²(約73.88坪)
- 所在階
- 4階
入居可能時期
即日可能
備考
三田線御成門駅3分、大門や浜松町も利用ができる好立地。
周辺には増上寺や芝公園があり都心では希少な緑があふれる心地のいい環境。
港区役所も近く便利なエリア。
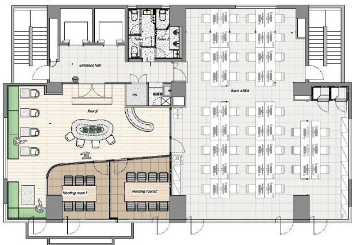
このエリアの居抜きオフィス、6名用・8名用会議室と個室ブースが設置済み。
執務室は40名前後でのご利用を想定、御成門の内装付きオフィスです。
会員限定公開情報は
無料会員登録後に閲覧いただけます
03-6260-9380
受付時間:平日9:00~18:00
間取り

同じエリアのおすすめ物件
物件情報
- 賃料
1,311,370円
- 敷金・保証金
- 6か月
- 礼金
- 無し
- 償却等
- 更新料:1ヵ月
敷引:1ヵ月
- 所在地
- 港区芝公園
- 交通
- 三田線「御成門」3分
浅草鎖線・大江戸線「大門」6分
JR・東京モノレール「浜松町」11分
- 構造規模
-
鉄筋鉄骨コンクリート造
地上8階
- 契約面積
- 244.23m²(約73.88坪)
- 所在階
- 4階
入居可能時期
即日可能
受付時間:平日9:00~18:00











