青山エリア。駅近の居抜きオフィス。
問い合わせ番号:7706成約済み
物件情報
- 賃料
- 相談
- 敷金・保証金
- 相談
- 所在地
- 港区南青山1
- 交通
- 千代田線「乃木坂」1分
日比谷線・大江戸線「六本木」6分
銀座線・半蔵門線「青山一丁目」9分
- 構造規模
-
鉄筋コンクリート造
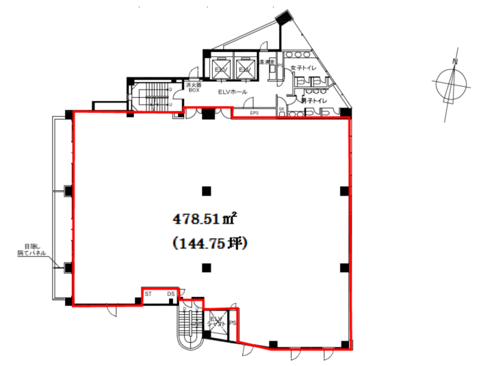
- 契約面積
- 478.51m²(約144.75坪)
入居可能時期
相談
備考
乃木坂駅1分、青山一丁目や六本木も使える
外苑東通りに面した賃貸オフィス。
カーテンウォールの南向きに面した大きな窓で
室内は非常に明るく、外苑東の並木道や緑も見え
心地い空間となっている。
すぐ近くにはミッドタウンや国立新美術館もあり、
感性を揺さぶる刺激的なエリア。
このエリアの居抜きオフィス、初期コストを抑え
移転されたい方にはうってつけ、南青山の居抜きオフィスです。
会員限定公開情報は
無料会員登録後に閲覧いただけます
03-6260-9380
受付時間:平日9:00~18:00
間取り

同じエリアのおすすめ物件
物件情報
- 賃料
- 相談
- 敷金・保証金
- 相談
- 所在地
- 港区南青山1
- 交通
- 千代田線「乃木坂」1分
日比谷線・大江戸線「六本木」6分
銀座線・半蔵門線「青山一丁目」9分
- 構造規模
-
鉄筋コンクリート造
- 契約面積
- 478.51m²(約144.75坪)
入居可能時期
相談
受付時間:平日9:00~18:00







