原状回復工事無し、内装費用一部貸主負担、天井が抜けたデザイナーズオフィス
問い合わせ番号:34881
物件情報
- 賃料
- 相談
- 敷金・保証金
-
12ヵ月※減額可能
※保証会社に加入することにより敷金0相談
審査の内容によっては敷金が積み増しになる可能性があります。
- 礼金
- 無し
- 償却等
- ・原則、原状回復工事不要です
・天井が抜けた状態での引渡しです
・什器等の設置はありません
・内装費用一部貸主負担が可能です
- 所在地
- 渋谷区恵比寿
- 交通
- JR・日比谷線「恵比寿」4分
- 構造規模
-
鉄筋鉄骨コンクリート造
地下1階 地上7階
- 契約面積
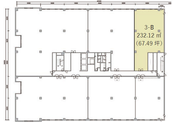
- 232.12m²(約70.22坪)
- 所在階
- 3階
入居可能時期
相談
備考
人気の恵比寿駅4分の好立地、このエリアでは希少な大型居抜きオフィス。
周辺にはコンビニや数多くの飲食店が軒を連ね、ランチやディナーの選択肢が多いのもうれしいところ。
デザイナーズ仕様のおしゃれな内装でスケルトン天井の開放的な空間も魅力。
初期コストや原状回復費も抑えられるため、コスト重視の企業にうってつけ。
30名から40名の企業向け、恵比寿駅のセットアップオフィスです。
会員限定公開情報は
無料会員登録後に閲覧いただけます
間取り

同じエリアのおすすめ物件

原宿駅・明治神宮前駅付近のセットアップオフィス
渋谷区神宮前
100.10m²〔30.28坪〕
100.10m²〔30.28坪〕
1,211,200円

敷金無し!渋谷エリアのセットアップオフィス
渋谷区渋谷
213.72m²〔64.65坪〕
213.72m²〔64.65坪〕
相談

敷金無し!代々木エリアのセットアップオフィス
渋谷区千駄ヶ谷
78.27m²〔23.68坪〕
78.27m²〔23.68坪〕
603,584円

千駄ヶ谷エリア。屋上専用バルコニー付きのメゾネットオフィス。
渋谷区千駄ヶ谷
134.58m²〔40.71坪〕
134.58m²〔40.71坪〕
980,000円

恵比寿エリアのセットアップオフィス
渋谷区恵比寿南
105.65m²〔31.96坪〕
105.65m²〔31.96坪〕
1,118,250円

代官山の居抜きオフィス
渋谷区猿楽町
155.87m²〔47.15坪〕
155.87m²〔47.15坪〕
相談
物件情報
- 賃料
- 相談
- 敷金・保証金
-
12ヵ月※減額可能
※保証会社に加入することにより敷金0相談
審査の内容によっては敷金が積み増しになる可能性があります。
- 礼金
- 無し
- 償却等
- ・原則、原状回復工事不要です
・天井が抜けた状態での引渡しです
・什器等の設置はありません
・内装費用一部貸主負担が可能です
- 所在地
- 渋谷区恵比寿
- 交通
- JR・日比谷線「恵比寿」4分
- 構造規模
-
鉄筋鉄骨コンクリート造
地下1階 地上7階
- 契約面積
- 232.12m²(約70.22坪)
- 所在階
- 3階
入居可能時期
相談
受付時間:平日9:00~18:00



