駅近の大型オフィス
問い合わせ番号:6294成約済み
物件情報
- 賃料
- 相談
- 敷金・保証金
- 相談
- 所在地
- 渋谷区恵比寿1
- 交通
- JR線・日比谷線「恵比寿」5分
- 構造規模
-
鉄筋コンクリート造
地下1階 地上7階
- 契約面積
- 847.70m²(約256.43坪)
- 所在階
- 5階
入居可能時期
10月
備考
恵比寿駅の東口下車し、
ロータリーを抜け、恵比寿4丁目の交差点を
左折するとすぐこの物件に到着する。
人気エリア恵比寿の大型賃貸オフィス。
恵比寿のど真ん中にあり、
周辺には、お洒落カフェやレストラン、
人気の飲食店がたくさんあり、
ランチやアフターファイブも楽しいエリア。
恵比寿の希少大型賃貸オフィスです。
会員限定公開情報は
無料会員登録後に閲覧いただけます
03-6260-9380
受付時間:平日9:00~18:00
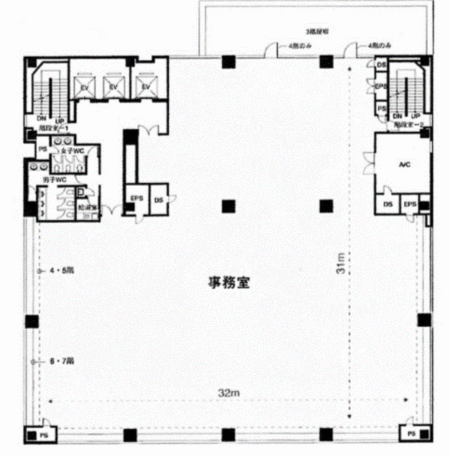
間取り

同じエリアのおすすめ物件

原宿駅・明治神宮前駅付近のセットアップオフィス
渋谷区神宮前
100.10m²〔30.28坪〕
100.10m²〔30.28坪〕
1,211,200円

敷金無し!渋谷エリアのセットアップオフィス
渋谷区渋谷
213.72m²〔64.65坪〕
213.72m²〔64.65坪〕
相談

敷金無し!代々木エリアのセットアップオフィス
渋谷区千駄ヶ谷
78.27m²〔23.68坪〕
78.27m²〔23.68坪〕
603,584円

千駄ヶ谷エリア。屋上専用バルコニー付きのメゾネットオフィス。
渋谷区千駄ヶ谷
134.58m²〔40.71坪〕
134.58m²〔40.71坪〕
980,000円

恵比寿エリアのセットアップオフィス
渋谷区恵比寿南
105.65m²〔31.96坪〕
105.65m²〔31.96坪〕
1,118,250円

代官山の居抜きオフィス
渋谷区猿楽町
155.87m²〔47.15坪〕
155.87m²〔47.15坪〕
相談
物件情報
- 賃料
- 相談
- 敷金・保証金
- 相談
- 所在地
- 渋谷区恵比寿1
- 交通
- JR線・日比谷線「恵比寿」5分
- 構造規模
-
鉄筋コンクリート造
地下1階 地上7階
- 契約面積
- 847.70m²(約256.43坪)
- 所在階
- 5階
入居可能時期
10月
受付時間:平日9:00~18:00




