1分で

完了

資料ダウンロード

新宿エリア。バルコニー付きの内装付きオフィス。

問い合わせ番号:26002成約済み

新宿御苑が見晴らせる屋上スペース※喫煙スペースあります

8階には受付スペース設置済みです

窓面が多く明るい貸室内

8階専用のバルコニースペース

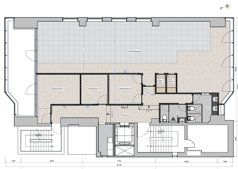
大・中・小の会議室が設置済みです

テレカンブースも2か所設置済みです

物件情報

賃料
相談

賃料は会員登録後にご確認いただけます。
会員登録はこちらから

敷金・保証金
無し
礼金
無し
償却等
※保証会社への加入が必須となります
所在地
新宿区新宿1
交通
丸の内線「新宿御苑前」1分
新宿線・副都心線「新宿三丁目」8分
JR・京王線・小田急線「新宿」13分
構造規模
鉄筋鉄骨コンクリート造
地下1階 地上9階
契約面積
196.13m²(約59.33坪)
所在階
8階

入居可能時期

即日可能

備考

新宿御苑駅1分、新宿も徒歩圏の好立地。
新宿御苑に面する都内でも希少な緑のあふれる良好な環境。
このエリアの内装付きオフィスで、
室内からの眺望はプレミアム。
個室会議室スペース3カ所、
テレカンブース2カ所設置済み。
執務室エリアは30名~40名程を想定。
おすすめのバルコニー付きセットアップオフィスです。

会員限定公開情報
無料会員登録後に閲覧いただけます

03-6260-9380

受付時間:平日9:00~18:00

間取り

物件情報

賃料
相談

賃料は会員登録後にご確認いただけます。
会員登録はこちらから

敷金・保証金
無し
礼金
無し
償却等
※保証会社への加入が必須となります
所在地
新宿区新宿1
交通
丸の内線「新宿御苑前」1分
新宿線・副都心線「新宿三丁目」8分
JR・京王線・小田急線「新宿」13分
構造規模
鉄筋鉄骨コンクリート造
地下1階 地上9階
契約面積
196.13m²(約59.33坪)
所在階
8階

入居可能時期

即日可能

03-6260-9380

受付時間:平日9:00~18:00

現在の検索結果

気になる物件のご質問、ご要望、内覧等は
お問い合わせフォーム または
お電話 でご連絡ください。

03-6260-9380

営業時間:平日9:00~18:00

×

条件で物件を探す

エリア

広さ

坪 ~

こだわり

キャンセル