新宿エリア。複数路線使用可能な居抜き相談物件。
問い合わせ番号:6713成約済み
物件情報
- 賃料
- 相談
- 敷金・保証金
- 12カ月
- 償却等
- ※室内写真をご希望の方はお問合せ下さい
- 所在地
- 新宿区新宿5
- 交通
- 丸の内線・副都心線・新宿線「新宿三丁目」5分
大江戸線「東新宿」5分
JR・小田急線・丸の内線等「新宿」10分
- 構造規模
-
鉄筋コンクリート造
- 契約面積
- 148.5m²(約44.92坪)
入居可能時期
2020年10月末予定
備考
新宿3丁目駅の地下入り口がすぐで
雨にぬれずJR新宿駅にも行ける好立地。
近くには伊勢丹やマルイ、歌舞伎町も近く
ショッピングやお食事やナイトライフも
充実している楽しいエリア。
このエリアの希少居抜き相談オフィス。
初期コストを抑えてい方にお勧め、
ご興味のおありの方には詳細資料をお送りいたします。
是非お問合せください。
会員限定公開情報は
無料会員登録後に閲覧いただけます
03-6260-9380
受付時間:平日9:00~18:00
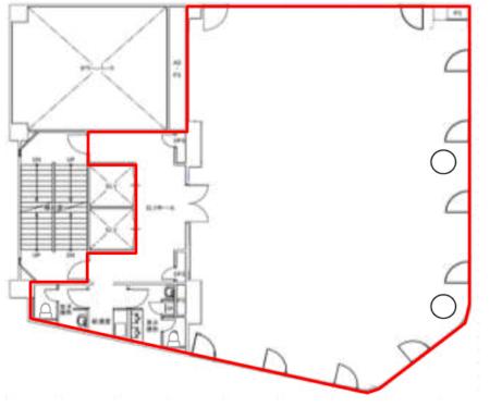
間取り

同じエリアのおすすめ物件

市ヶ谷駅徒歩圏のセットアップ工事予定物件
新宿区市谷本村町
305.11m²〔92.30坪〕
305.11m²〔92.30坪〕
2,584,400円

市ヶ谷駅徒歩圏のセットアップ工事予定物件
新宿区市谷本村町
560.39m²〔169.52坪〕
560.39m²〔169.52坪〕
4,746,560円

新宿御苑エリアの美装内装付きオフィス
新宿区大京町
424.08m²〔128.28坪〕
424.08m²〔128.28坪〕
3,591,840円

西新宿エリア。駅直結の居抜きオフィス。(居抜き相談)
新宿区西新宿
711m²〔215.08坪〕
711m²〔215.08坪〕
相談

高田馬場エリアで希少なセットアップオフィス
新宿区高田馬場
82.28m²〔24.89坪〕
82.28m²〔24.89坪〕
597,120円

敷金無し!四谷エリアのセットアップオフィス
新宿区四谷
71.73m²〔21.70坪〕
71.73m²〔21.70坪〕
477,400円
物件情報
- 賃料
- 相談
- 敷金・保証金
- 12カ月
- 償却等
- ※室内写真をご希望の方はお問合せ下さい
- 所在地
- 新宿区新宿5
- 交通
- 丸の内線・副都心線・新宿線「新宿三丁目」5分
大江戸線「東新宿」5分
JR・小田急線・丸の内線等「新宿」10分
- 構造規模
-
鉄筋コンクリート造
- 契約面積
- 148.5m²(約44.92坪)
入居可能時期
2020年10月末予定
受付時間:平日9:00~18:00

